• MVE
  • hydrotechnika
  • hydroenergetika

Projektujeme vodní stavby

Provádíme a zajištujeme kompletní projektovou dokumentaci ve všech projektových stupních:

Dokumentace k územnímu řízení
Dokumentace k vodoprávnímu a stavebnímu povolení
Realizační dokumentace stavby
Autorský dozor v oboru hydrotechnických staveb

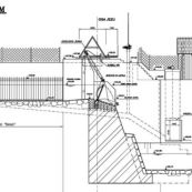
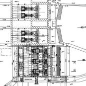
Reference

Ukázky z našich projektů: